レジュールアッシュ難波MINAMI 4階部分 2,180万円
「難波」徒歩8分!×築浅レジデンス賃貸中!
大阪ミナミの中心、7駅6路線が自在に使える抜群のアクセス。
心斎橋・なんば・日本橋をはじめ、商業・ビジネス・観光が融合した関西屈指の人気エリア。
日々の通勤利便性に加え、単身世帯・転勤層・インバウンド需要など、多様な入居ニーズが集中。
安定した賃貸運用が見込める「資産価値重視型」マンションとして注目の一室です。
ポイント
- 所在地
大阪市浪速区元町2丁目12-10
- 専有面積
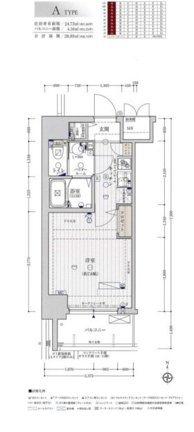
24.73㎡ (間取り:1K)
- 総戸数
73戸
- 間取り
1K
- 構造・規模
鉄筋コンクリート造地上11階建
アクセス
Osaka Metro御堂筋線「なんば」駅 徒歩8分
JR関西本線「JR難波」駅 徒歩10分
南海本線「難波」駅 徒歩10分
間取り
-
Aタイプ
- エレベーター:9人乗、90m/min1基、防犯カメラ設置
- 階段:屋外避難階段1ヶ所設置
- 避難設備:避難器具、誘導灯、非常コンセント設備、非常用照明、非常警報設備
- 防災・消 設備:共同住宅用自動火災報知設備、消火器、連結送水管
- 防犯設備:防犯カメラ10台(エレベーター内含む)、オートロックシステム(カラーモニター付、住戸内インターホンにて解錠可)
- メールボックス:メールコーナーに設置
- 宅配ボックス:メールコーナーに設置
- ゴミ置場:1階部分に設置
- テレビ共同視聴設備:R階にアンテナ設置
- インターネット:キッズウェイ「あぱねっと®」にて対応、各部屋にWi-Fiルーター設置
- 避雷針:R階に設置
- その他:館銘板、エントランスホール、EVホール、廊下、バイク置場、ミニバイク置場、自転車置場
アクセス
Osaka Metro御堂筋線「なんば」駅 徒歩8分
JR関西本線「JR難波」駅 徒歩10分
南海本線「難波」駅 徒歩10分
